yibggjzemp

400-860-7355
4008607355
[email protected]
生物除臭技術

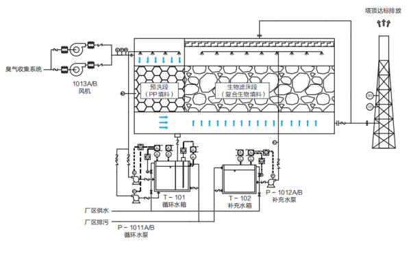
生物濾床除臭技術主要是利用微生物除臭,通過微生物的生理代謝将具有臭味的物質加以轉化,使目标污染物被有效分解去除,以達到惡臭的治理目的。生物除臭的基本原理是利用微生物的新陳代謝,将臭氣中的臭氣污染物轉化為簡單的二氧化碳、水、硫酸根等無機物,從而從臭氣中去除臭氣污染物。比如芳烴、醇類、酸類等惡臭污染物可以生物降解成二氧化碳和水;含氮化合物可以通過微生物的硝化和反硝化轉化為硝酸鹽或氮氣;含硫化合物可以通過微生物轉化為環境中相對穩定的硫酸鹽。

 

生物濾床除臭具體過程是先将人工篩選的特種微生物菌群固定于填料上,當污染氣體經過填料表面初期,可從污染氣體中獲得營養源的那些微生物菌群,在适宜的溫度、濕度、pH值等條件下,将會得到快速生長、繁殖,并在填料表面形成生物膜,當臭氣通過其間,有機物被生物膜表面的水層吸收後被微生物吸附和降解,得到淨化再生的水被重複使用。污染物去除的實質是以臭氣作為營養物質被微生物吸收、代謝及利用。這一過程是微生物的相互協調的過程,比較複雜,它由物理、化學、物理化學以及生物化學反應所組成。

 

f2152f68b529587107ebbd4971f8025967871d1414a5d.jpg a66d7ee4993f31a7a6a814b9e3809c46677b4f2848985.png

 

若您需要進一步了解更多污水處理技術或獲得此類污水處理的定制方案
請聯系我們 咨詢熱線
power by 成人色站 2025-12-11 05:00:55